
수서역세권 A2BL 행복주택 추가(예비) 입주자모집공고
수서역세권 행복주택 : 서울특별시 강남구 자곡동에 위치하는 수서 역세권a2bl행복주택 아파트 추가(예비) 입주자모집 청약신청은 7월 3일부터 5일까지 3일동안 진행되며, 당첨자발표는 11월 29일이다.
수서역세권 A2BL 행복주택 금번 예비입주자 추가모집은 전용 14㎡~44㎡이며 임대보증금은 최저 4,140만원(14A 주거급여수급자)부터 최고 1억6720만원(44A/B 신혼부부,한부모가족)까지 공급형별 공급대상별로 다양하게 책정되었으며, 월임대료는 별도이다.
금번 공급분은 최초 모집이 진행된 2021년 12월 이후 미계약 및 해지세대에 대한 (예비)입주자를 추가로 모집하는 것으로 공고일(‘23.6.20.) 현재 대기 중인 예비자가 없으며, 예비자는 공가 및 향후 해약세대가 발생할 경우를 대비하여 모집하는 것으로 금회 모집공고에서 예비자 순번을 받으실 경우(예비입주자) 예비순번에 따라 실제 입주 시까지 상당기간이 소요될 수 있다.
| <목차 Content> 1. 공급내역 2. 입지 3. 임대보증금/월임대료 4. 평면도 5. 청약일정 |
1. 공급내역 및 청약자격
1. 공급위치 : 서울특별시 강남구 자곡동 일원 수서역세권 A2블록 행복주택
2. 공급내역 : 전용면적 14~44㎡ 당첨자 및 예비자 포함 747호
3. 입주시기 : 2024년 4월 예정


| 공급 형별 |
공급 대상 |
당첨자 | 예비자 |
| 14A | 대학생 | 46 | 100 |
| 청년 (소득無) |
|||
| 청년 (소득有) |
|||
| 주거급여 수급자 |
6 | 12 | |
| 26A | 청년 (소득無) |
5 | 12 |
| 청년 (소득有) |
|||
| 주거급여 수급자 |
7 | 29 | |
| 26B | 고령자 (주거약자) |
53 | 44 |
| 36A | 청년 (소득無) |
142 | 139 |
| 청년 (소득有) |
|||
| 신혼부부 한부모가족 |
|||
| 고령자 | 0 | 2 | |
| 36B | 청년 (소득無) |
15 | 24 |
| 청년 (소득有) |
|||
| 신혼부부 한부모가족 |
|||
| 고령자 | 0 | 2 | |
| 44A | 신혼부부 한부모가족 |
24 | 53 |
| 44B | 신혼부부 한부모가족 |
5 | 11 |
| 44C | 신혼부부 한부모가족 |
6 | 10 |
◆ 수서역세권 A2BL 행복주택은 입주자모집공고일인 2023년 6월 20일 현재 다음에 해당하는 사람에게 공급된다.
※ 신청자격에 따라 임대조건이 달리 적용되오니, 세부 자격요건은 공고문 본문(3. 신청자격)을 확인하시기 바람.
| 자격 | 세부사항 |
| ① 대학생 계층 | - 대학생 : 대학에 재학 중이거나 다음 학기에 입·복학 예정인 사람 - 취업준비생 : 대학 또는 고등학교를 졸업(또는 중퇴)한 지 2년 이내인 사람 |
| ② 청년 계층 | - 청년 : 만19세 이상 만39세 이하인 사람(출생일 1983.06.21.~2004.06.20.) - 사회초년생 : 소득이 있는 업무에 종사한 기간이 총 5년 이내이며, 아래의 하나에 해당하는 사람 1) 소득이 있는 업무에 종사하는 사람 2) 퇴직한 후 1년이 지나지 않은 사람으로서 구직급여 수급자격을 인정받은 사람 3) 예술인 |
| ③ 신혼부부· 한부모가족계층 |
- 신혼부부 : 공고일 현재 혼인중이며 혼인기간이 7년 이내이거나 만6세 이하의 자녀를 둔 사람 - 예비신혼부부 : 입주전까지 혼인사실을 증명할수 있는 사람 - 한부모가족 : 만6세이하 자녀(2016.06.21. 이후 출생)를 둔 한부모인 사람 |
| ④ 고령자 | 만65세 이상(1958.06.20. 이전 출생)인 사람 |
| ⑤ 주거급여 수급자 |
「주거급여법」제2조제2호 및 제3호에 따른 수급권자 또는 수급자 |
• 본 모집공고문의 모집대상 주택에 대하여 1세대 1주택 신청을 원칙으로 하며, 중복 신청하는 경우 전부 무효처리됨.
• 상기 행복주택은 공급대상자에 따라 최대 거주기간 제한이 있는 임대주택이며 분양전환 되지 않는다.
• 본 단지는 공고일(‘23.06.20.) 현재 대기 중인 예비자가 없으며 모집호수는 기계약자의 계약해지 등에 따라 변동될 수 있다.
• 예비자는 공가 및 향후 해약세대가 발생할 경우를 대비하여 모집하는 것으로 금회 모집공고에서 예비자 순번을 받으실 경우(예비입주자) 예비순번에 따라 실제 입주 시까지 상당기간이 소요될 수 있다.
◆ 입주 자격별 최대 거주기간
임대차 계약기간은 2년이며, 계속 거주를 희망하는 경우에는 관계법령에서 정한
입주자격을 충족하는 자에 한하여 2년 단위로 계약을 갱신할 수 있으며 최대 거주기간은 아래와
같다.
| 입주자격 | 최대 거주기간 |
| 대학생,청년 계층 | 6년 |
| 신혼부부·한부모가족 계층 | 무자녀(6년), 자녀 1명 이상(10년) |
| 고령자,주거급여수급자 | 20년 |
2. 입지




1. 수서역 트리플 역세권(3호선, 분당선, SRT) 및 GTX-A노선 수서역(예정)등 서울과 수도권을 빠르게 연결
2. 단지 인근(반경 2km) 율현초, 자곡초, 대청초, 대모초, 왕북초 및 세곡중, 수서중, 세종고, 배명고 등 우수한 교육환경
3. 강남, 송파, 위례를 잇는 중심지이자 문정비즈밸리, 가든파이브 등 동남권 개발의 핵심지로 탁월한 미래가치

<지구 및 외부여건>
• 지구 북서측에 지하철 3호선 및 분당선이 위치하고 있으며, 수서-평택 고속철도(SRT) 수서역이 지구 내에 입지하여 있음
• 제3차 국가철도망구축계획에 따라 GTX(A노선 : 삼성~동탄)가 지구 내 지중으로 공사중에 있으며, 지구 내에 수서광주선(수서~광주 복선전철사업)이 계획되어 있으며, 동 사업추진 등으로 인하여 지구 내 기반시설 설치 및 이용이 지연될 수 있음
• 지구 남북축으로 분당~수서 고속화도로, 밤고개로, 동서축으로는 양재대로 및 광평로, 헌릉로, 자곡로 등이 있음
• 대상지는 헌릉 I.C, 송파 I.C, 수서 I.C, 내곡 I.C와 연접하여 서울외곽순환도로, 용인~서울간 고속도로, 동부간선도로 등 광역교통시설과 연결되어 있음
• 지구 반경 2km이내에 세곡2지구, 강남지구, 수서지구를 비롯하여 문정도시개발사업,동 남권유통단지, 가락시장 현대화사업 등이 있으며, 반경3km 이내에는 세곡지구 및 위례신도시가 입지하여 있음
• 당해 지구 내에는 공공분양∙행복주택 등이 함께 계획되어 있음
• 지구 남측 약 3km에 서울공항이 있으며, 항공기 운항에 따른 소음이 발생될 수 있음
• 지구 동측에 연접하여 서울교통공사 수서차량기지가 있으며, 차량정비에 따른 생활영향이 있을 수 있음
• 지구 내 환승센터부지에 지구 내외의 빗물의 배제를 위한 유수지가 운영되고 있음
3. 임대보증금/월임대료
| 공급 형별 |
공급 대상 |
보증금 (천원) |
월임대료 (원) |
| 14A | 대학생 | 46,920 | 160,310 |
| 청년 (소득無) |
|||
| 청년 (소득有) |
49,680 | 169,740 | |
| 주거급여 수급자 |
41,400 | 141,450 | |
| 26A | 청년 (소득無) |
83,980 | 286,930 |
| 청년 (소득有) |
88,920 | 303,810 | |
| 주거급여 수급자 |
74,100 | 253,170 | |
| 26B | 고령자 (주거약자) |
93,860 | 320,680 |
| 36A | 청년 (소득無) |
116,620 | 398,450 |
| 청년 (소득有) |
123,480 | 421,890 | |
| 신혼부부 한부모가족 |
137,200 | 468,760 | |
| 고령자 | 130,340 | 445,320 | |
| 36B | 청년 (소득無) |
116,620 | 398,450 |
| 청년 (소득有) |
123,480 | 421,890 | |
| 신혼부부 한부모가족 |
137,200 | 468,760 | |
| 고령자 | 130,340 | 445,320 | |
| 44A | 신혼부부 한부모가족 |
167,200 | 571,260 |
| 44B | 신혼부부 한부모가족 |
167,200 | 571,260 |
| 44C | 신혼부부 한부모가족 |
166,400 | 568,530 |
• 임대조건의 임대보증금 및 월임대료는 입주자모집공고일 현재 기준이며, 예비입주자로 선정된 분은 추후 공가가 발생하여 임대차계약을 체결하게 되는 시점의 주변시세를 반영한 변경 임대조건이 적용됨.
• 월임대료의 임대보증금 전환 및 임대보증금의 월임대료 전환은 임차인의 선택사항으로서 임대보증금 100만원 단위로 전환 가능함.
• 위 최대전환 시 임대조건은 월임대료의 임대보증금으로 전환 시 이율 6%, 임대보증금의 월임대료로 전환시 이율2.5%를 적용하며, 향후 전환이율이 변경되는 때에는 변경된 이율을 적용하여 다시 산정하게됨.

강남한양수자인(2014년/1304세대)
-59㎡ 월세 4억원/45만원(23년5월)
강남자곡아이파크(2014년/716세대)
-59㎡ 월세 4억원/35만원(23년4월)
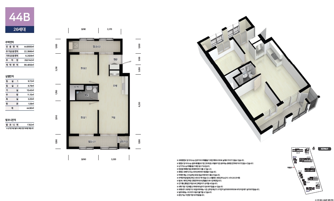
4. 평면도




수서역세권 A2BL 행복주택 평면도










5. 청약일정

청약신청 : 7월 3일~5일
서류제출 대상자발표 : 7월 7일
서류제출 대상자 서류접수 : 7월 12일~14일
당첨자발표 : 11월 29일
계약체결 : 12월 11일~13일
LH청약센터







'생활정보' 카테고리의 다른 글
| 하나스테이 양정 공공지원 민간임대주택 보증금 평면도 월세현황 청약자격분석 (0) | 2023.06.22 |
|---|---|
| 힐스테이트 모종 블랑루체 분양가 아산 입지VR 평면도 최근경쟁률 청약분석 (0) | 2023.06.22 |
| LH 서울 강남5단지 서초3단지 장기전세 입주자모집공고 아파트 전세현황 청약분석 (0) | 2023.06.21 |
| 원주 동문 디이스트 특별공급 경쟁률 단지여건 유상옵션 분석 (0) | 2023.06.20 |
| 성내스페이스 공공지원 민간임대주택 모집공고 성내동 월세현황 청약분석 (0) | 2023.06.20 |