
센트레빌 아스테리움 시그니처
은평 센트레빌 아스테리움 시그니처 : 서울특별시 은평구 역촌동에서 공급되는 센트레빌 아스테리움 시그니처 아파트는 지하 3층, 지상 13~20층 8개동 총 752세대 중에서 조합분과 보류지, 임대분을 제외한 454세대를 일반분양하며, 전용면적 59㎡~84㎡ 총 6개타입으로 구성되어 있다. 센트레빌 아스테리움 시그니처 분양가는 전용 59타입 5억4598만원~6억5329만원, 전용 70타입 6억4142만원~7억3125만원, 전용 84타입 7억5077만원~8억5315만원으로 책정되었으며, 3월 9일 특별공급을 시작으로 일반공급 1순위는 10일, 당첨자발표일은 3월 17일이다.
| <목차 Content> 1. 공급내역 2. 입지 3. 분양가 4. 평면도 5. 청약일정 |
1. 공급내역 및 청약자격
1. 공급위치 : 서울특별시 은평구 역촌동 189-1번지 일원
2. 공급내역 : 아파트 지하 3층, 지상 13~20층 8개동 총 752세대[조합 230세대(보류지 6세대 포함), 임대 68세대] 중 일반분양 454세대
[특별공급 240세대(일반[기관추천] 45세대, 다자녀가구 45세대, 신혼부부 91세대, 노부모부양 14세대, 생애최초 45세대 포함)] 및 부대복리시설
3. 입주예정시기 : 2024년 11월 예정

| 공급타입 | 주택면적/㎡ (전용+공용) |
특별공급 | 일반공급 |
| 59A | 80.9669 | 102 | 91 |
| 59B | 80.7645 | 5 | 3 |
| 59C | 81.4071 | 69 | 63 |
| 70A | 95.0720 | 32 | 27 |
| 70B | 95.7220 | 10 | 7 |
| 84 | 113.1378 | 22 | 23 |
◆ 센트레빌 아스테리움 시그니처 아파트의 최초 입주자모집공고일은 2023년 2월 27일(청약자격조건의 기간, 나이, 지역우선 등의 청약자격조건 판단기준일)이며, 해당 주택건설지역인 서울특별시 은평구는 비투기과열지구 및 비청약과열지역으로서, 1주택 이상 소유한 세대에 속한 분도 1순위 자격이 부여된다.
◆ 금번 공급분은 수도권 비투기과열지구 및 비청약과열지역의 민간택지에서 공급하는 분양가상한제 미적용 민영주택으로 재당첨 제한을 적용받지 않고 기존 주택 당첨 여부와 관계없이 본 아파트 청약이 가능하다.(단, 당첨된 청약통장은 계약 여부와 관계없이 재사용이 불가함.)
◆ 최초 입주자모집공고일(2023. 02. 27.) 현재 서울특별시에 거주하거나 경기도 및 인천광역시에 거주(주민등록표등본 기준)하는 만19세 이상인 자 또는 세대주인 미성년자(자녀양육,형제자매부양)[국내에서 거주하는 재외동포(재외국민, 외국국적 동포) 및 외국인 포함]의 경우 청약이 가능하다. 다만 청약 신청자 중 같은 순위 내에 경쟁이 있을 경우 해당 주택건설지역인 서울특별시 거주자가 우선한다.
◆ 규제완화 체크포인트
1. 전매완화 : 당첨자발표 1년이후 전매가능, 실거주 의무없이 처분 가능
2. 대출완화 : 중도금 60% 전액대출 가능, 인당 보증한도 폐지로 자금 조달 부담완화
3. 청약완화 : 유주택자, 세대원도 청약가능, 추첨제(60%)적용으로 내집 마련 기회 확대
4. 세금완화 : 2주택까지 취득세 일반세율 적용(1~3%), 일시적으로 2주택 비과세 처분기한 연장(3년)
◆ 전매제한
금번 공급분은 분양가상한제 미적용주택으로 본 주택의 입주자로 선정된 날부터 소유권이전등기일까지(다만, 그 기간이 3년을 초과하는 경우 3년) 전매가 금지된다. (단, 향후 관련법령 등 개정에 따라 조정될 수 있다.)
2. 입지



1. 막힘없는 교통망, 생활의 속도를 높여주는 교통프리미엄
-지하철 6호선 응암역, 3호선 불광역, 공항철도 GTX-A노선(예정), 경전철서부선(예정) 등 쾌속교통
2. 풍부한 명문학군, 교육걱정 없는 교육프리미엄
-역촌초, 덕산중, 구산중, 은평중, 예일여고, 은평고, 숭실고 등 우수한 학군
3. 넉넉한 명품생활, 다양한 인프라를 갖춘 생활프리미엄
-이마트, NC백화점, 시립서북병원, 서부병원, 은평구청, 서부경찰서 등 인프라 인접
4. 돋보이는 숲세권, 자연으로 가득한 환경프리미엄
-봉산공원, 구산근린공원, 불광천 등 쾌적한 자연환경
3. 센트레빌 아스테리움 시그니처 분양가




| 공급평형(전용)/㎡ | 분양가(최저~최고) |
| 59A | 5억7489만원 ~6억5329만원 |
| 59B | 5억4598만원 ~6억1288만원 |
| 59C | 5억6847만원 ~6억5027만원 |
| 70A | 6억4350만원 ~7억3125만원 |
| 70B | 6억4142만원 ~7억2889만원 |
| 84 | 7억5077만원 ~8억5315만원 |
| 서울 신규공급분 | 전용84타입 분양최고가 |
| 마포 더 클래시 | 14억3100만원 |
| 더샵 파크솔레이유 | 13억2433만원 |
| 올림픽파크 포레온 | 13억2040만원 |
| 영등포자이 디그니티 | 11억7900만원 |
| 장위자이 레디언트 | 10억2350만원 |
| 리버센 SK VIEW 롯데캐슬 | 9억8170만원 |
| 센트레빌 아스테리움 시그니처 | 8억5315만원 |
| 센트레빌 아스테리움 시그니처 | 영등포자이 디그니티 |
| 서울시 은평구 역촌동 189-1 |
서울시 영등포구 양평동1가 265-1 |
| 지하3층, 지상20층 8개동, 총 752세대 |
지하2층, 지상35층 4개동, 총 707세대 |
| 1순위 : 3/10 2순위 : 3/13 당첨발표 : 3/17 |
1순위 : 3/7 2순위 : 3/8 당첨발표 : 3/14 |
| <분양최고가> 59㎡ 6억5329만원 84㎡ 8억5315만원 |
<분양최고가> 59㎡ 8억6900만원 84㎡ 11억7900만원 |
| 입주예정 : 24년11월 | 입주예정 : 26년3월 |
2023.02.23 - 영등포자이 디그니티 일반분양 모집공고 분양가 평면도 아파트시세 청약분석
영등포자이 디그니티 일반분양 모집공고 분양가 평면도 아파트시세 청약분석
영등포 자이 디그니티 영등포자이 디그니티 일반분양 : 서울특별시 영등포구 양평동1가 양평 12구역 도시환경정비사업으로 진행되는 영등포자이 디그니티는 지하 2층 지상 35층, 4개동, 총 707세
azmicx.tistory.com

역촌센트레빌(2011년/400세대)
-84㎡ 8억원(22년9월) 최근매물 7억7000만원~8억9000만원
구산동경남아너스빌(2004년/475세대)
-84㎡ 5억2000만원(22년11월) 최근매물 7억1000만원~7억5000만원
응암역효성해링턴플레이스(2019년/380세대)
-84㎡ 최근매물 10억8000만원
백련산파크자이(2021년/678세대)
-84㎡ 9억원(23년2월)
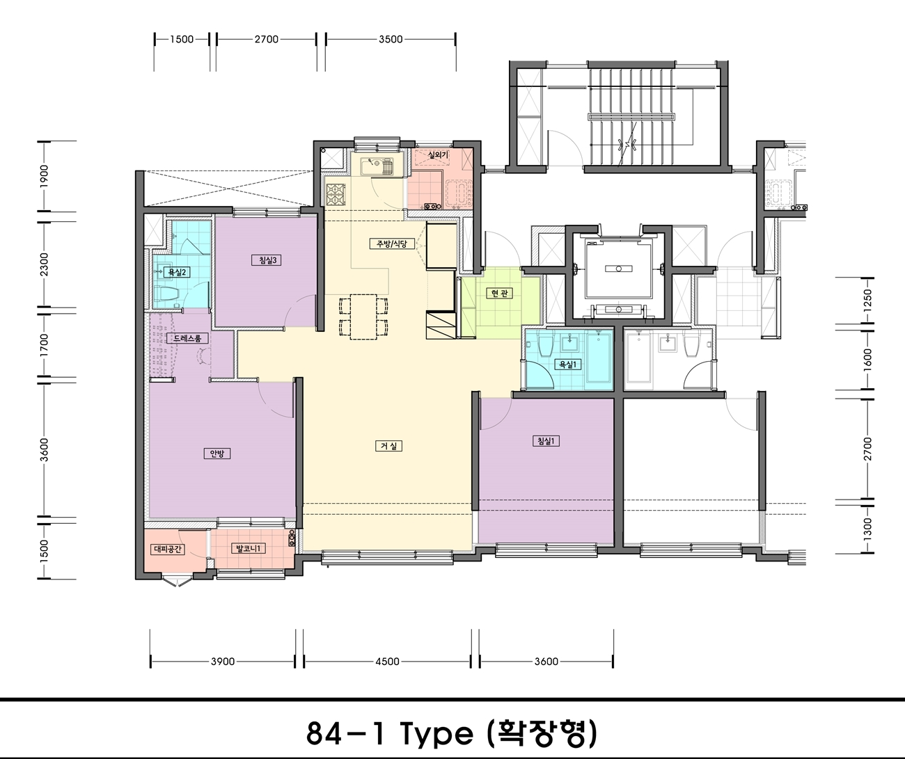
4. 센트레빌 아스테리움 시그니처 평면도





센트레빌 아스테리움 시그니처 평면도
(3/3 오픈예정)









센트레빌 아스테리움 시그니처 홈페이지
http://www.centreville-signature.co.kr

5. 청약일정



특별공급 : 3월 9일
일반공급 1순위 : 3월 10일
일반공급 2순위 : 3월 13일
당첨자발표 : 3월 17일
계약체결 : 3월 28일~30일
청약홈















'생활정보' 카테고리의 다른 글
| 고덕 강일 3단지 특별공급 경쟁률 당첨자 선정방법 청약분석 (0) | 2023.03.01 |
|---|---|
| 주안캐슬앤더샵에듀포레 무순위 줍줍 주안동 아파트시세 청약유의사항 (0) | 2023.02.28 |
| 고덕강일 3단지 반값아파트 자격 유의사항 사전청약 경쟁률 분석 (0) | 2023.02.25 |
| 등촌 지와인 분양가 평면도 강서구 등촌동 아파트시세 청약분석 (0) | 2023.02.24 |
| 순천 한양수자인 디에스티지 무순위 줍줍 분양가 용당동 아파트시세 청약분석 (0) | 2023.02.24 |